Historisches 7-Parteienhaus zum Verkauf

Einzigartige Investitionsmöglichkeit: Nicht denkmalgeschütztes Mehrfamilienhaus mit Ferienwohnungserlaubnis in Bergisch Gladbach.

Faktor 7 | Rendite 14,79%

Boardinghouse für 1.700.000 EUR zu verkaufen

Objektübersicht

01

Baujahr

Ca. 1890, zuletzt
saniert 2023

02

Wohnfläche

464 m² verteilt auf
7 Einheiten 286 m² Grundstück

03

Lage

Tannenbergstr. 9, 51465 Bergisch Gladbach (Zentrum)

04

Preis


1.700.000 €

05

Rendite (soll) / Faktor bei Eigenbetrieb

14,29 % / 7

06

Genehmigte Nutzung

Ferienwohnung/
Monteurzimmer

Besonderheiten

  • Ferienwohnungserlaubnis
    Genehmigte Nutzung als Ferienwohnung für hohe Rendite, wenn man diese selbst betreibt
  • Sanierter Zustand
    Überwiegend gut modernisiert, inkl. Fassade
  • Zentrale Lage
    Exzellente Lage am westlichen Innenstadtrand von Bergisch Gladbach

Gebäudestruktur

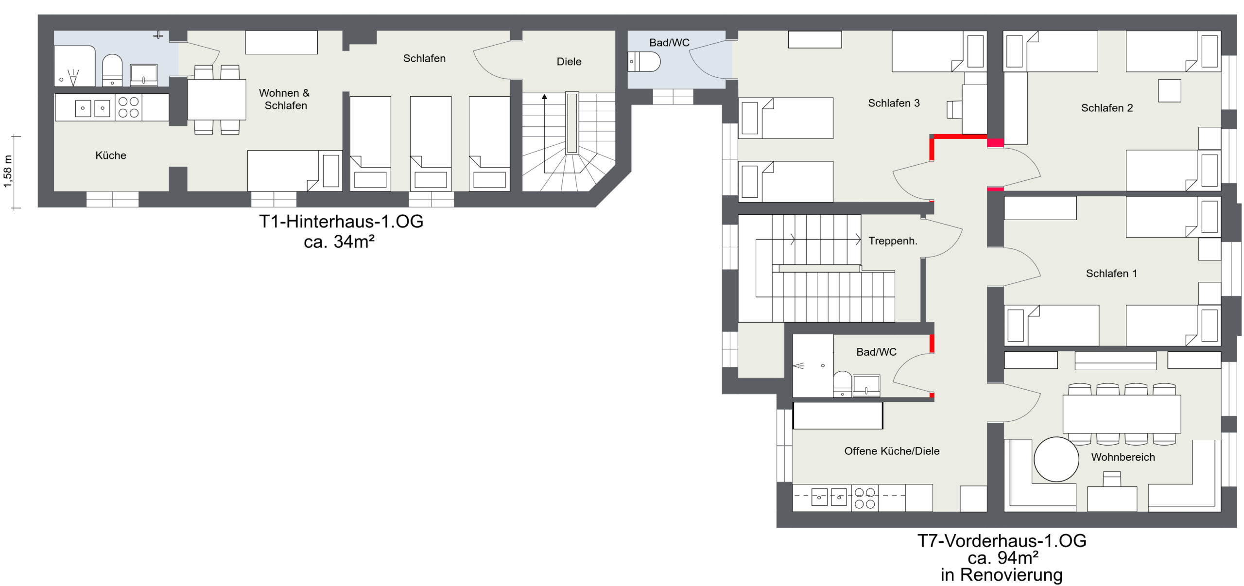
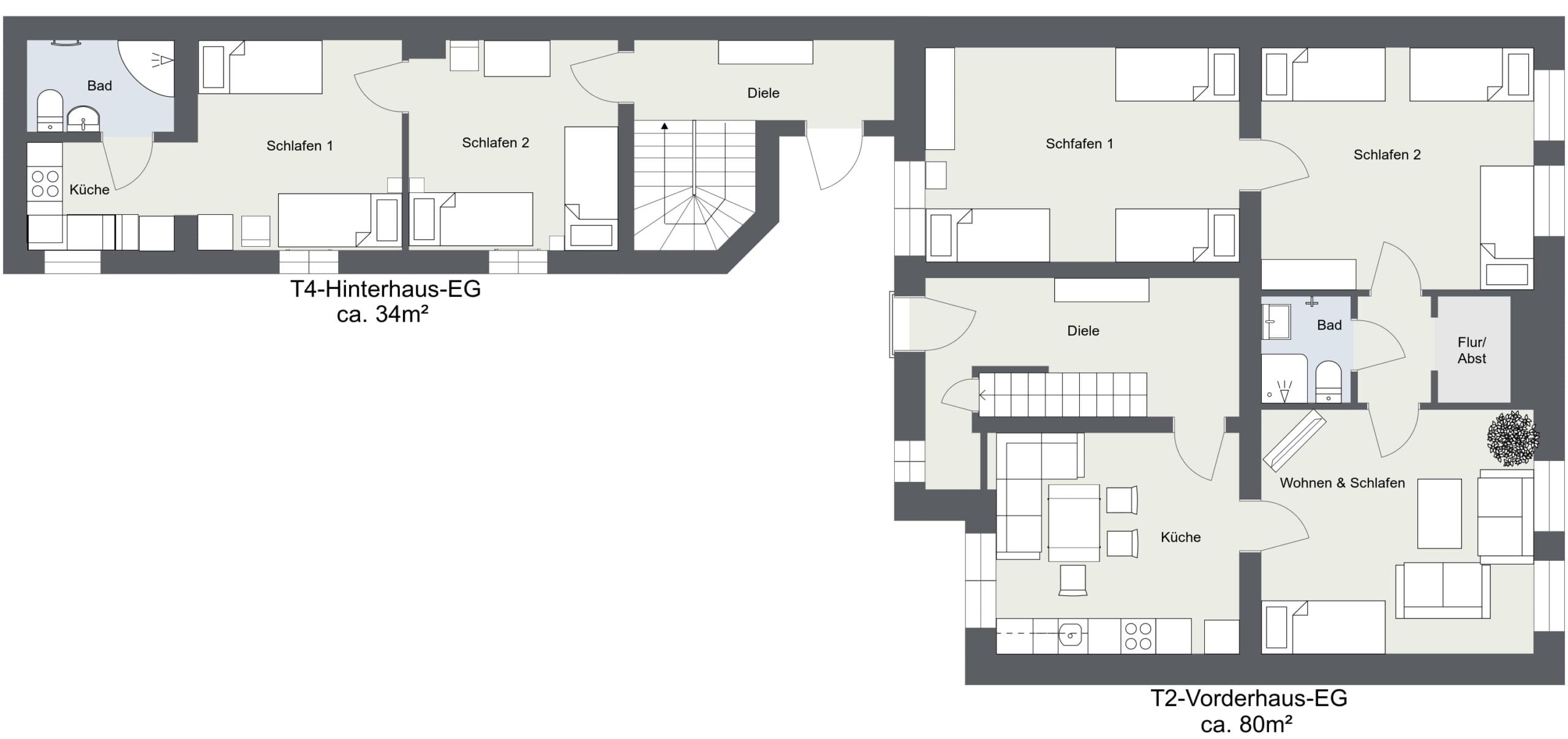
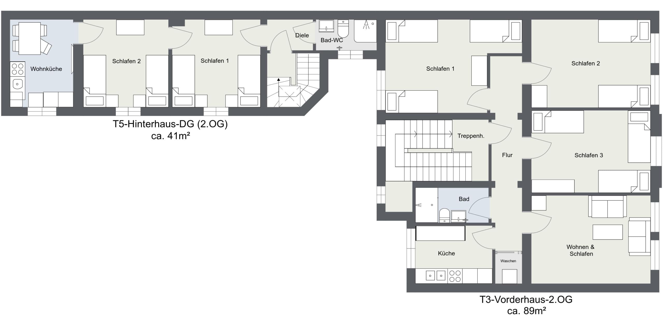
  • Vorderhaus: 4 Wohnungen über 3 Stockwerke
  • Hinterhaus: 3 Wohnungen über 3 Stockwerke
  • Keller: Fast komplett unterkellert für zusätzliche Nutzungsmöglichkeiten

Austattung

  • Fenster
    Teilweise 2022 erneuert, K-Rahmen mit Isolierglas
  • Heizung
    Gas-Etagenheizungen, teilweise neu oder generalüberholt
  • Bodenbeläge
    Keramik, Laminat, PVC und Teppich
  • Sanitär
    Duschbäder und WC in jeder Wohnung

Modernisierungsmaßnamen Vorderhaus

1

Erdgeschoss

2016 gründlich renoviert

2

1. Obergeschoss

Sanierungsbedürftig

3

2. Obergeschoss

2018 entkernt, sämtliche Gewerke erneuert, neue Gasheiztherme

4

Dachgeschoss

2022 entkernt, sämtliche Gewerke erneuert, neue Gasheiztherme

Modernisierungsmaßnahmen Hinterhaus

1

Erdgeschos

2018 komplett entkernt und erneuert, inklusive Fenster

2

1. Obergeschoss

Entkernt und gut renoviert

3

Dachgeschoss

2018 komplett entkernt und erneuert, teilweise inklusive Fenster

Mietübersicht

WohneinheitFlächeZimmerBettenIst-Miete (netto) verpachtetSoll-Miete (netto)-Eigenbetrieb
1.Vorderhaus EG80 m²371.945,95 €3.729,00 €
2.Vorderhaus 1.OG94 m²40 (7)0,00 € (2.286,49 €)3.729,00 €
3.Vorderhaus 2.OG89 m²472.164,86 €3.729,00 €
4.Vorderhaus DG92 m²472.237,84 €3.729,00 €
5.Hinterhaus EG34 m²23827,03 €1.598 €
6.Hinterhaus 1.OG34 m²23827,03 €1.598 €
7.Hinterhaus DG41 m²24997,30 €2.131 €
Summe:464 m²2130 (38)9.000,00 € (11.286,49 €)20.241 €

Renditeberechnung

Ist-Miete /Nach Sanierung108.000 € / 135.438 € pro Jahrist-Rendite: 6,35% / 8% pro Jahr
Soll-Mietumsätze (Eigenbetrieb Ferienwohnung)242.886 € pro Jahr
Rendite (Soll-Miete bei Eigenbetrieb)14,29% bei Ferienwohnungsvermietung

Lage des historischen 7-Parteienhaus

Das Objekt befindet sich im westlichen Innenstadtrand von Bergisch Gladbach. Die Tannenbergstraße 9 liegt in Gronau in einer ruhigen Wohngegend mit guter Infrastruktur. Geschäfte, Schulen, Kindergärten, Sportstätten und Verwaltungsstellen sind bequem zu Fuß oder mit dem Fahrrad erreichbar.
Die Lage bietet eine hervorragende Straßenanbindung. Die Autobahn A4 ist in wenigen Minuten erreichbar, wodurch eine schnelle Verbindung zu anderen Städten und Gemeinden gewährleistet ist.

Bilder zum Objekt

Baupläne

Keller (Hinter- & Vorderhaus)

EG (Hinter- & Vorderhaus)

1.OG (Hinter- & Vorderhaus)

2.OG Dachgeschoss Hinterhaus 2.Etage Vorderhaus

3.OG Dachgeschoss Vorderhaus

Rechtliche Hinweise

Jährliche Kosten von ca. 350 € für Erhaltung des Zugangsweges, geteilt mit Nachbargrundstück.

Verkauf wie gesehen, unter Ausschluss sämtlicher Haftungsrisiken, soweit gesetzlich zulässig

Nicht ausgeschlossen. Bedingungen der Baugenehmigung für Ferienwohnungen müssen vom Käufer erfüllt werden

Kontaktieren Sie uns

Füllen Sie das Formular aus, um mit uns in Kontakt zu treten.